Celia At A Glance
2,218 SQFT
3 Beds
3 Baths
Ranch
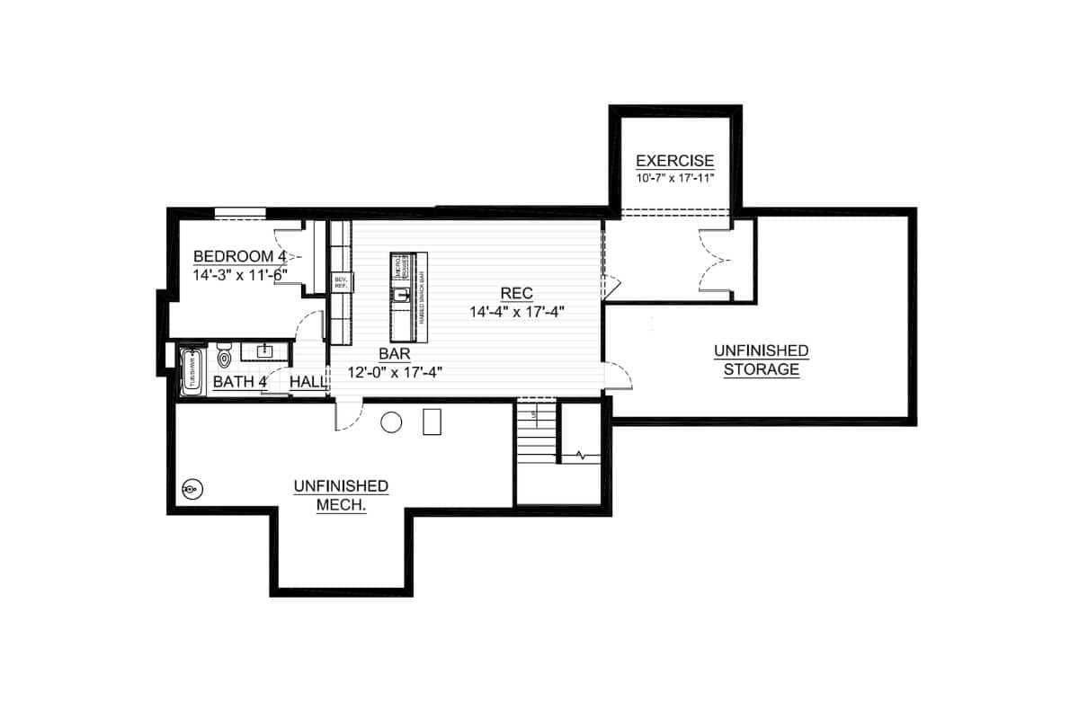
Optional Finished Basement:
1,096 SQ FT | 1 Bed | 1 Bath
Welcome home to The Celia, a stunning 2,218 sq. ft. ranch-style retreat designed for modern living. This 3-bedroom, 3-bathroom layout offers a seamless open floor plan, featuring a chef-inspired kitchen with high-end finishes, a spacious great room with abundant natural light, and a cozy dining area perfect for gatherings. The Rear covered porch completes the outdoor area for entertaining! The private primary suite boasts a beautiful bath and a generous walk-in closet, while two additional bedrooms provide comfort and convenience for family or guests.
For even more flexibility, the optional 1,096 sq. ft. finished basement adds a fourth bedroom, full bath, and extra living space, ideal for entertaining, a home office, or a private guest suite.
Designed with elegance and versatility in mind, The Celia is where style meets function—your dream home awaits!
Contact us today to start customizing your perfect space!
Standard
Berg Inclusions
- Superior craftsmanship and premium materials
- Innovative design and 3D architectural planning
- Comprehensive 1-year builder warranty
- Dedicated in-house interior designer
- Experienced team with a strong contractor and supplier network
- Energy-efficient home construction
- Extensive inclusions and generous allowances







