Serafina At A Glance
2,444 SQFT
4 Beds
3 Baths
Ranch
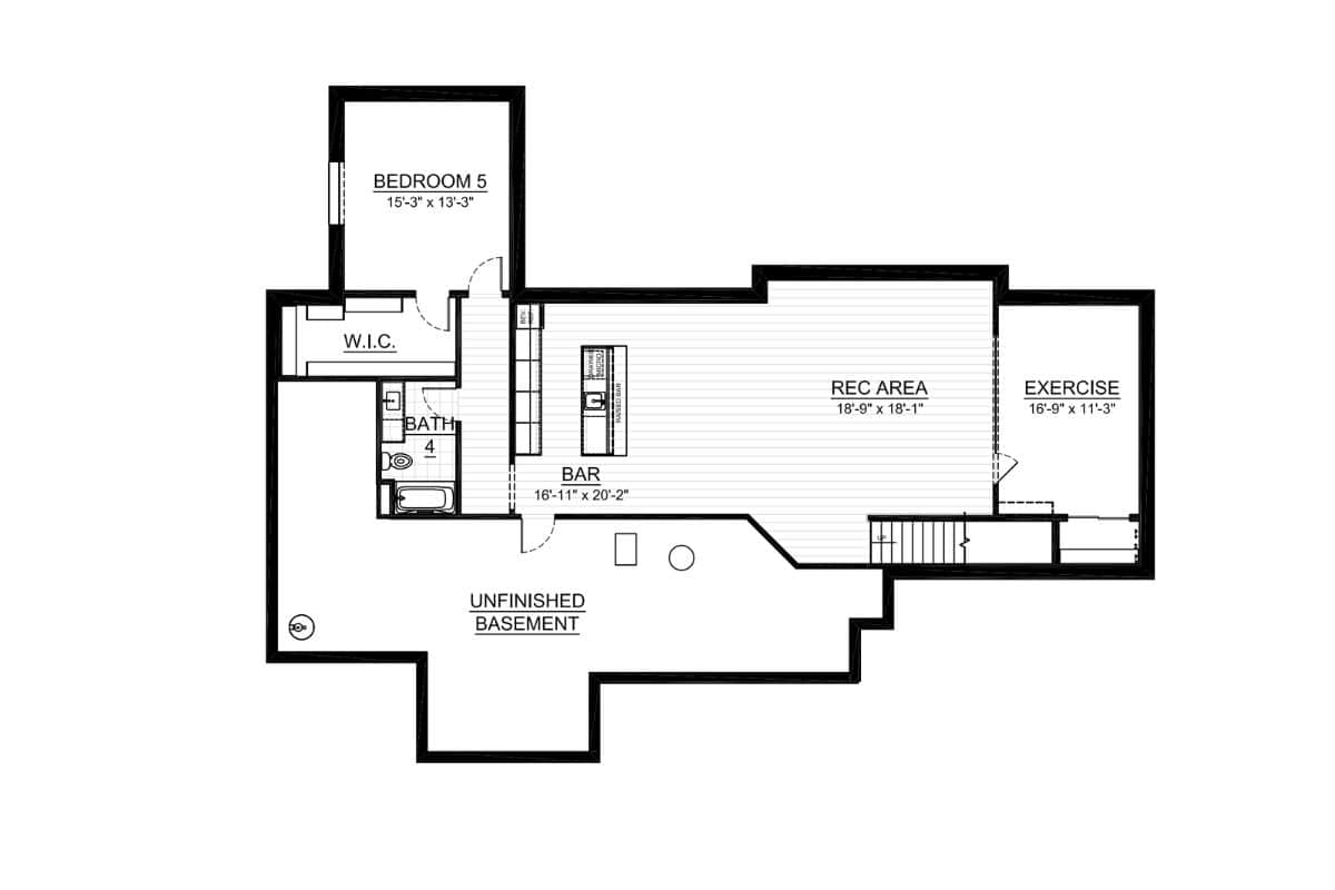
Optional Finished Basement:
1,511 SQ FT | 1 Bed | 1 Bath
Optional Bonus Room:
555 SQ FT | 1 Bed | 1 Bath
Welcome to The Serafina, a stunning 2,444 sq. ft. ranch-style home that combines elegant design with functional living. With 4 bedrooms and 3 bathrooms, this home offers an open-concept floor plan, featuring a chef-inspired kitchen with premium finishes, a bright and airy great room, and a formal dining area perfect for entertaining. The primary suite is a private retreat with a gorgeous bath and generous walk-in closet, while three additional bedrooms provide space and comfort for family or guests.
For those needing even more space, The Serafina offers customizable options to fit your lifestyle:
Optional 1,511 sq. ft. finished basement – Adds a fifth bedroom, full bath, and additional living area, ideal for a media room, gym, or private guest suite.
Optional 555 sq. ft. bonus room – Ideal for a playroom, private office, or creative studio.
With high-end craftsmanship, thoughtful design, and flexible living spaces, The Serafina is a home built to grow with you.
Contact us today to make The Serafina your dream home!
Standard
Berg Inclusions
- Superior craftsmanship and premium materials
- Innovative design and 3D architectural planning
- Comprehensive 1-year builder warranty
- Dedicated in-house interior designer
- Experienced team with a strong contractor and supplier network
- Energy-efficient home construction
- Extensive inclusions and generous allowances







